A0804【契約済み】

A0804【契約済み】

A0804

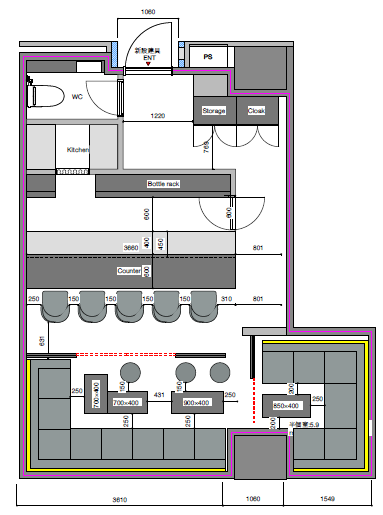
物件情報 A0804(12.3坪)

  • 賃料311,190円
  • 管理費51,414円
  • 看板使用料11,000円
  • 水道・光熱費検針料2,200円
  • 町内会費(非課税)2,000円
  • トラブルコール6,600円
  • ゴミ処理費16,500円
  • グリストラップ清掃0
  • 監視カメラ0
  • サイネージ0
  • 保険料月払い(非課税)3,579円
  • 小計404,483円
  • 看板施工費148,500円
  • 保証金1,697,400円
  • 保証料償却消費税404,483円
  • 家賃保証業者保証料118,818円
  • 小計2,369,201円
  • 合計2,773,684円

CONTACT

お電話でのお問い合わせ tel.052-916-4771


受付時間:平日9:00-18:00

24時間受付中。後日担当者よりご連絡いたします。

土日祝日やお急ぎの際は、こちらにご連絡いただけますようお願い申し上げます。万が一、不在の場合は、ショートメールをお残しいただけますと幸いです。

お問い合わせ 担当者直通TEL